0120-38-8127

受付時間:8:30〜17:30(土日祝日は除く)

N・Kビルの建物情報

お問い合わせ番号:021-18567
N・Kビル 外観1
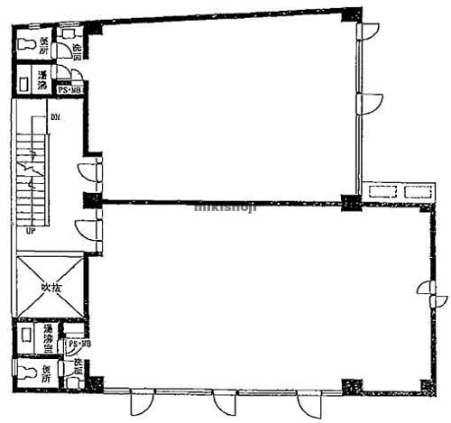
N・Kビル 平面1
N・Kビル 外観9
N・Kビル 平面1
所在地
豊島区南池袋1-16-4
最寄駅
    池袋駅(西武池袋線) 西武南口 2分
    池袋駅(東京メトロ丸ノ内線・有楽町線・副都心線) 39番口 4分
    池袋駅(JR) メトロポリタン口 6分
竣工
1985年 4月
規模
地上5階建
延床面積
270坪
基準階面積
45坪
駐車場設備
なし
エレベーター
なし
空調設備
個別方式

N・Kビルの公開募集区画

階数 面積 賃料(共益費含) 預託金 入居可能日 一括請求リスト
3階 25.46坪(84.166㎡) 407,360円16,000円/坪 1,909,500円75,000円/坪 即日
階数
3階
面積
25.46坪(84.166㎡)
賃料(共益費含)
407,360円 16,000円/坪
預託金
1,909,500円 75,000円/坪
入居可能日
即日
一括請求リスト

※募集フロアや面積、賃貸条件、設備等は状況により変更になる場合があります。
※(案)のフロアは分割または一括貸の面積例です。
※賃貸条件の上段は月額、下段は坪単価を表示します。
※賃料、共益費は別途消費税の対象となります。
※掲載写真や図面(パース含む)が現況と異なる場合は現況を優先します。
※ご成約時は規定の仲介手数料を申し受けます。

N・Kビルの周辺地図

オフィス探しで
こんなお悩み
ありませんか?
  • 物件を探す時間が無い
  • なかなか良い物件が
    見つからない
  • プロ目線で物件を
    提案してほしい

約60,000棟の
登録物件の中から
オフィス仲介のプロが
理想のオフィス探しを
徹底サポートいたします。

チェックした物件を