0120-534-011

受付時間:8:30〜17:30(土日祝日は除く)

CSSビルディングⅢの建物情報

お問い合わせ番号:021-03648
CSSビルディングⅢ 外観1
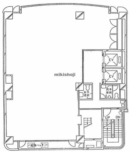
CSSビルディングⅢ 平面1
CSSビルディングⅢ 外観9
CSSビルディングⅢ 平面1
所在地
中央区銀座6-5-13
最寄駅
    銀座駅(東京メトロ銀座線・丸ノ内線・日比谷線) B9口 3分
    日比谷駅(東京メトロ日比谷線・千代田線/都営三田線) A0口 5分
    新橋駅(JR) 銀座口 7分
竣工
1987年 7月
規模
地上9階/地下1階建
延床面積
712坪
基準階面積
66坪
駐車場設備
なし
エレベーター
あり 2基
空調設備
個別方式
基準天井高
2,500mm

CSSビルディングⅢの公開募集区画

階数 面積 賃料(共益費含) 預託金 入居可能日 一括請求リスト
9階 66.01坪(218.216㎡) 2,310,350円35,000円/坪 25,347,840円384,000円/坪 入居日相談
階数
9階
面積
66.01坪(218.216㎡)
賃料(共益費含)
2,310,350円 35,000円/坪
預託金
25,347,840円 384,000円/坪
入居可能日
入居日相談
一括請求リスト

※募集フロアや面積、賃貸条件、設備等は状況により変更になる場合があります。
※(案)のフロアは分割または一括貸の面積例です。
※賃貸条件の上段は月額、下段は坪単価を表示します。
※賃料、共益費は別途消費税の対象となります。
※掲載写真や図面(パース含む)が現況と異なる場合は現況を優先します。
※ご成約時は規定の仲介手数料を申し受けます。

CSSビルディングⅢの周辺地図

オフィス探しで
こんなお悩み
ありませんか?
  • 物件を探す時間が無い
  • なかなか良い物件が
    見つからない
  • プロ目線で物件を
    提案してほしい

約60,000棟の
登録物件の中から
オフィス仲介のプロが
理想のオフィス探しを
徹底サポートいたします。

チェックした物件を