0120-534-011

受付時間:8:30〜17:30(土日祝日は除く)

豊島ビルの建物情報

お問い合わせ番号:008-00274
豊島ビル 外観1
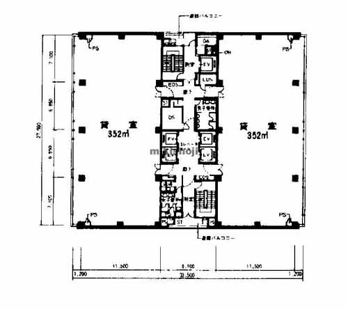
豊島ビル 平面1
豊島ビル 外観9
豊島ビル 平面1
所在地
名古屋市中区錦2-15-15
最寄駅
    伏見駅(名古屋市営東山線・鶴舞線) 1番口 3分
    丸の内駅(名古屋市営桜通線・鶴舞線) 5番口 6分
    栄町駅(名鉄瀬戸線) 12分
竣工
1985年12月
規模
地上15階/地下3階建
延床面積
5,565坪
基準階面積
213坪
駐車場設備
あり 収容台数108台
エレベーター
あり 5基
空調設備
個別方式
基準天井高
2,500mm

豊島ビルの公開募集区画

階数 面積 賃料(共益費含) 預託金 入居可能日 一括請求リスト
3階 53坪(175.207㎡) 相談相談/坪 相談相談/坪 即日
階数
3階
面積
53坪(175.207㎡)
賃料(共益費含)
相談 相談/坪
預託金
相談 相談/坪
入居可能日
即日
一括請求リスト

※募集フロアや面積、賃貸条件、設備等は状況により変更になる場合があります。
※(案)のフロアは分割または一括貸の面積例です。
※賃貸条件の上段は月額、下段は坪単価を表示します。
※賃料、共益費は別途消費税の対象となります。
※掲載写真や図面(パース含む)が現況と異なる場合は現況を優先します。
※ご成約時は規定の仲介手数料を申し受けます。

豊島ビルの周辺地図

オフィス探しで
こんなお悩み
ありませんか?
  • 物件を探す時間が無い
  • なかなか良い物件が
    見つからない
  • プロ目線で物件を
    提案してほしい

約60,000棟の
登録物件の中から
オフィス仲介のプロが
理想のオフィス探しを
徹底サポートいたします。

チェックした物件を