0120-534-011

受付時間:8:30〜17:30(土日祝日は除く)

MK立川南ビルの建物情報

お問い合わせ番号:021-88349
MK立川南ビル 外観1
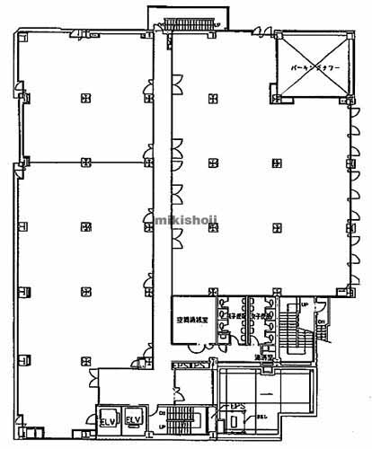
MK立川南ビル 平面1
MK立川南ビル 外観9
MK立川南ビル 平面1
所在地
立川市柴崎町2-12-24
最寄駅
    立川南駅(多摩都市モノレール線) 出口1 3分
    立川駅(JR) 南口 5分
    立川北駅(多摩都市モノレール線) 南口 8分
竣工
1982年11月(リニューアル:2018年10月)
規模
地上7階建
延床面積
1,950坪
基準階面積
342坪
駐車場設備
あり 収容台数16台
エレベーター
あり 1基
空調設備
個別方式
基準天井高
2,500mm
基準床荷重
1t/㎡

MK立川南ビルの公開募集区画

階数 面積 賃料(共益費含) 預託金 入居可能日 一括請求リスト
4階 49.09坪(162.282㎡) 736,350円15,000円/坪 6,381,700円130,000円/坪 2026.09上旬
4階 29.9坪(98.843㎡) 448,500円15,000円/坪 3,887,000円130,000円/坪 2026.09上旬
階数
4階
面積
49.09坪(162.282㎡)
賃料(共益費含)
736,350円 15,000円/坪
預託金
6,381,700円 130,000円/坪
入居可能日
2026.09上旬
一括請求リスト
階数
4階
面積
29.9坪(98.843㎡)
賃料(共益費含)
448,500円 15,000円/坪
預託金
3,887,000円 130,000円/坪
入居可能日
2026.09上旬
一括請求リスト

※募集フロアや面積、賃貸条件、設備等は状況により変更になる場合があります。
※(案)のフロアは分割または一括貸の面積例です。
※賃貸条件の上段は月額、下段は坪単価を表示します。
※賃料、共益費は別途消費税の対象となります。
※掲載写真や図面(パース含む)が現況と異なる場合は現況を優先します。
※ご成約時は規定の仲介手数料を申し受けます。

MK立川南ビルの周辺地図

オフィス探しで
こんなお悩み
ありませんか?
  • 物件を探す時間が無い
  • なかなか良い物件が
    見つからない
  • プロ目線で物件を
    提案してほしい

約60,000棟の
登録物件の中から
オフィス仲介のプロが
理想のオフィス探しを
徹底サポートいたします。

チェックした物件を