0120-38-8127

受付時間:8:30〜17:30(土日祝日は除く)

シンセイビルの建物情報

お問い合わせ番号:009-00860
シンセイビル 外観1
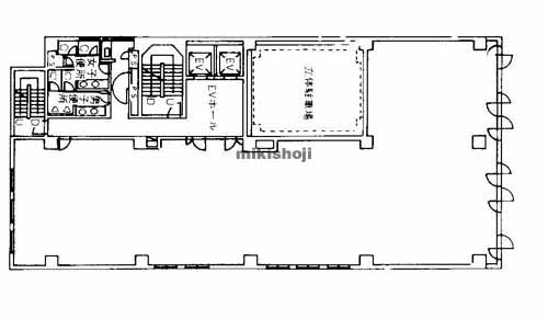
シンセイビル 平面1
シンセイビル 外観9
シンセイビル 平面1
所在地
大阪市中央区南船場2-7-26
最寄駅
    長堀橋駅(地下鉄堺筋線・長堀鶴見緑地線) 2-B口 5分
    堺筋本町駅(地下鉄堺筋線・中央線) 10番口 8分
竣工
1993年 9月
規模
地上9階/地下1階建
延床面積
1,263坪
基準階面積
98坪
駐車場設備
あり 収容台数32台
エレベーター
あり 2基
空調設備
個別方式
基準天井高
2,600mm

シンセイビルの公開募集区画

階数 面積 賃料(共益費含) 預託金 入居可能日 一括請求リスト
2階 26.49坪(87.571㎡) 365,000円13,780円/坪 630,000円23,783円/坪 即日
階数
2階
面積
26.49坪(87.571㎡)
賃料(共益費含)
365,000円 13,780円/坪
預託金
630,000円 23,783円/坪
入居可能日
即日
一括請求リスト

※募集フロアや面積、賃貸条件、設備等は状況により変更になる場合があります。
※(案)のフロアは分割または一括貸の面積例です。
※賃貸条件の上段は月額、下段は坪単価を表示します。
※賃料、共益費は別途消費税の対象となります。
※掲載写真や図面(パース含む)が現況と異なる場合は現況を優先します。
※ご成約時は規定の仲介手数料を申し受けます。

シンセイビルの周辺地図

オフィス探しで
こんなお悩み
ありませんか?
  • 物件を探す時間が無い
  • なかなか良い物件が
    見つからない
  • プロ目線で物件を
    提案してほしい

約60,000棟の
登録物件の中から
オフィス仲介のプロが
理想のオフィス探しを
徹底サポートいたします。

チェックした物件を